您的位置: 首页 >> 工程案例

某厂房完损状况检测

作者:钧测检测鉴定   发布时间:2018-03-23 00:00:00 人气:112

  
检测的目的、范围和内容  
受检房屋包括厂房及其附属办公用房。该厂房为单层排架结构房屋,办公用房为二层砖混结构房屋,始建于1994年。该厂房及办公用房建筑、结构图纸缺失,原设计单位与施工单位不详。  
为了解该厂房及其附属办公用房的完损现状,某发展有限公司特委托湖北同优工程技术有限公司房屋质量检测站对该受检房屋进行完损状况检测,为房屋后期使用提供可靠的安全保障。具体工作内容如下:  
(1)房屋建筑、结构概况调查;  
(2)房屋建筑、结构布置测绘;  
(3)房屋使用情况调查;  
(4)房屋完损状况检测;  
(5)房屋变形检测;  
(6)结合现场检测结果,对房屋进行完损评级;  
(7)提出结论与建议,出具检测报告书。  
现场检测及结果  
房屋建筑、结构概况调查  
经现场调查了解,受检房屋分为厂房和办公用房,该厂房为单层排架结构房屋,办公用房为二层砖混结构房屋,始建于1994年。厂房平面形式呈矩形,东西方向长约89.88m,南北方向宽约36.20m,该房屋总建筑面积约3289.66m2。厂房东西向共15个开间,开间尺寸一般为5.5m、6.0m,东西向共2跨,跨度为18m,厂房于9~10轴间设变形缝。厂房室内外高差约0.15m,檐口高度约为12.6m,屋脊高度约为15.8m,屋面形式为双坡屋面,屋面两侧设纵向天沟。厂房围护墙体采用烧结普通砖与混合砂浆砌筑,墙厚约240mm,外立面采用普通砂浆及白色涂料粉刷。办公用房分为5个区域,其中A区(15~17/A~H轴)为二层办公楼,东西方向长约11.74m,南北方向宽约6.50m,建筑面积约142.78m2,房屋室内外高差约0.15m,一层层高约3.2m,二层层高约3.2m,建筑高度约6.55m,屋面形式为平屋面;B区(14~15/B~H轴)为单层仓库,东西方向长约9.24m,南北方向宽约4.46m,建筑面积约41.21m2,房屋室内外高差约0.15m,一层层高约3.2m,建筑高度约3.35m,屋面形式为平屋面;C区(6~13/F~J轴)为二层办公楼,一层使用功能为机房,二层使用功能为办公,房屋东西方向宽约7.04m,南北方向长约20.44m,建筑面积约301.90m2,房屋室内外高差约0.15m,一层层高约3.2m,二层层高约3.2m,建筑高度约6.55m,屋面形式为平屋面;D区(5~6/F~J轴)为单层机房,东西方向长约7.04m,南北方向宽约5.40m,建筑面积约38.02m2,房屋室内外高差约0.15m,一层层高约6.4m,建筑高度约6.55m,屋面形式为平屋面;E区(1~4/F~J轴)为单层卫生间,东西方向长约6.24m,南北方向宽约6.24m,建筑面积约38.94m2,房屋室内外高差约0.30m,一层层高约3.05m,建筑高度约3.35m,屋面形式为平屋面。房屋平面布置见图  
 
受检房屋总平面示意图  
经过现场调查,厂房为一幢单层混凝土排架结构房屋,排架柱柱距为5.5m、6m,截面形式均为矩形,下柱截面尺寸为400mm×800mm,上柱尺寸为400mm×600mm,屋面采用三角形预制混凝土屋架,屋架上铺大型屋面板,大型屋面板尺寸为1.5m×6.0m。厂房于1~2/A(G)轴、8~9/A(G)轴、10~11/A(G)轴、16~17/A(G)轴处设上柱柱间支撑,于4~5/A(G)轴、13~14/A(G)轴处设下柱柱间支撑。厂房于1~2轴、8~9轴、10~11轴、16~17轴处设屋面支撑。东西两侧山墙均设有抗风柱,截面尺寸均为400mm×800mm,柱距均为6.0m。厂房于A轴、D轴、G轴9.0m标高处设置有T字形混凝土吊车梁,支承方式为简支。办公用房均为砖混结构,承重墙主要由烧结普通砖及混合砂浆实心砌筑,墙体厚度一般为240mm,横墙间距主要为3.0m。楼(屋)面板采用混凝土现浇板,楼板厚约为120mm。办公用房局部布有混凝土梁,梁尺寸主要为240mm×400mm、240mm×350mm等。  
房屋建筑、结构布置测绘  
现场采用LeicaTCR1202型电子全站仪、手持式激光测距仪、钢直尺、卷尺、楼板测厚仪、钢筋探测仪和游标卡尺对墙体的分布、门窗位置及尺寸等建筑布置情况以及房屋的轴线尺寸、结构高度、构件截面尺寸、连接构造等结构概况进行现场测绘。建筑、结构布置现场测绘结果见附件二:附图1~8。  
房屋使用情况调查  
经过现场调查,厂房及办公用房自建成后使用功能未发生改变,目前为闲置状态。受检厂房及办公用房均未曾发生火灾、使用荷载过大、结构大修等情况。  
房屋变形测量  
房屋倾斜检测  
为明确房屋目前实际倾斜情况,现场采用LeicaTCR1202全站仪对房屋外部墙体进行垂直投影测量,测量其顶部相对底部偏移值,检测房屋倾斜的程度。因通视条件限制,对厂房及办公用房A区、D区部分角点进行了倾斜测量,测量数据结果见表 
厂房倾斜测量结果  
办公用房倾斜测量结果  
由检测结果可以得出,厂房最大倾斜率为0.56‰,未超出《危险房屋鉴定标准》JGJ125-1999(2004版)中规定的房屋整体倾斜限值10‰;办公用房最大倾斜率为2.06‰,未超出《危险房屋鉴定标准》JGJ125-1999(2004版)中规定的房屋整体倾斜限值10‰。(测量结果包括房屋实际倾斜度和施工误差影响)  
房屋不均匀沉降检测  
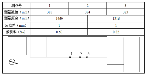
根据现场实际情况,选取房屋设计处于同一平面的窗洞口上沿,采用LeicaTCR1202全站仪对受检房屋进行相对不均匀沉降检测,因通视条件限制,对厂房及办公用房C区进行了相对不均匀沉降检测,检测结果详见表6.3~6.4。  
厂房沉降差测量结果  
办公用房沉降差测量结果  
由检测结果可以得出,厂房各点沉降无明显规律,基础局部最大倾斜率为2.83‰,小于《建筑地基基础设计规范》(GB50007-2011)关于同类建筑基础局部倾斜的限值3‰;办公用房各点沉降差较小,基础局部最大倾斜率为0.82‰,小于《建筑地基基础设计规范》(GB50007-2011)关于同类建筑基础局部倾斜的限值3‰。(由于沉降观测包含施工误差,此数据仅作参考)  
房屋完损检测  
现场对受检房屋主体结构及结构构件进行了外观损伤检测。经检测,厂房主要损伤有墙面泛潮,粉刷层起壳剥落,地坪破损等;办公用房主要损伤有墙面、顶棚粉刷层起壳剥落,露筋锈蚀等。具体完损检测结果见表  
房屋完损检测结果  




房屋完损等级评定  
根据《房屋完损等级评定标准(试行)》(城住字(84)第678号)对该处房屋结构、装修和设备完损状况进行评定。  
结构部分  
(1)厂房结构部分  
1)地基基础:未见主体结构存在因不均匀沉降引起的明显开裂、变形现象,房屋倾斜较小。  
2)承重构件:梁、柱、板、屋架平直牢固,无倾斜变形,但存在少许渗水、霉变。  
3)非承重墙:砖墙平直完好,基本无风化破损。  
4)屋面:不渗漏,基层平整完好,积尘甚少,排水畅通。  
5)楼地面:面层平整无空鼓、裂缝,但存在局部破损。  
(2)办公用房结构部分  
1)地基基础:未见地板、砖墙等主体结构存在因不均匀沉降引起的明显开裂、变形现象,房屋倾斜较小。  
2)承重构件:梁、墙、板平直牢固,无倾斜变形,但局部存在混凝土剥落露筋锈蚀,少许渗水、霉变。  
3)非承重墙:砖墙平直完好,基本无风化破损。  
4)屋面:局部渗漏,基层平整完好,积尘甚少,排水畅通。  
5)楼地面:未发现裂缝、空鼓、剥落、严重起砂。  
装修部分  
(1)厂房装修部分  
1)门窗:门窗无明显变形、开关正常。  
2)内外抹灰:局部有起壳、剥落,个别处存在开裂。  
(2)办公用房装修部分  
1)门窗:门窗无明显变形、开关正常,玻璃破损,油漆老化翘皮、剥落。  
2)内外抹灰:普遍存在空鼓、开裂、风化、剥落现象。  
设备部分  
(1)厂房设备部分  
1)水卫:上、下水管道基本畅通,管道部分锈蚀。  
2)电照:电器设备、线路、照明装置基本完好。  
(2)办公用房设备部分  
1)水卫:上、下水管道基本畅通,管道部分锈蚀。  
2)电照:电器设备、线路、照明装置基本完好。  
完损等级评定  
根据《房屋完损等级评定标准(试行)》(城住字(84)第678号),厂房结构、装修、设备部分各项完损程度符合基本完好的标准,房屋可评为基本完好房。  
根据《房屋完损等级评定标准(试行)》(城住字(84)第678号),办公用房结构、装修、设备部分各项完损程度符合一般损坏的标准,房屋可评为一般损坏房。  
结论与建议  
结论  
通过对厂房的检测,得出以下几点结论:  
(1)厂房为单层排架结构房屋,办公用房为二层砖混结构房屋,始建于1994年。厂房及办公用房自建成后使用功能未发生改变,目前为闲置状态。受检厂房及办公用房均未曾发生火灾、使用荷载过大、结构大修等情况。  
(2)现场对房屋角部墙体进行垂直投影测量,测量其顶部相对底部偏移值,测量结果表明,厂房最大倾斜率为0.56‰,未超出《危险房屋鉴定标准》JGJ125-1999(2004版)中规定的房屋整体倾斜限值10‰;办公用房最大倾斜率为2.06‰,未超出《危险房屋鉴定标准》JGJ125-1999(2004版)中规定的房屋整体倾斜限值10‰。(测量结果包括房屋实际倾斜度和施工误差影响)  
(3)根据现场实际情况,对受检房屋进行相对不均匀沉降检测,检测结果表明,厂房各点沉降无明显规律,基础局部最大倾斜率为2.83‰,小于《建筑地基基础设计规范》(GB50007-2011)关于同类建筑基础局部倾斜的限值3‰;办公用房各点沉降差较小,基础局部最大倾斜率为0.82‰,小于《建筑地基基础设计规范》(GB50007-2011)关于同类建筑基础局部倾斜的限值3‰。(由于沉降观测包含施工误差,此数据仅作参考)  
(4)现场对受检房屋主体结构及结构构件进行了外观损伤检测。经检测,厂房主要损伤有墙面泛潮,粉刷层起壳剥落,地坪破损等;办公用房主要损伤有墙面、顶棚粉刷层起壳剥落,露筋锈蚀等。  
(5)根据《房屋完损等级评定标准(试行)》(城住字(84)第678号),厂房可评为基本完好房;附属办公用房可评为一般损坏房。  
建议  
(1)建议对厂房粉刷层起壳剥落、地坪破损处进行恢复修缮;对办公用房墙面、顶板粉刷层起壳剥落部位进行恢复修缮,对露筋锈蚀部位进行除锈及保护层恢复。  
(2)建议在后续使用过程中对受检房屋进行定期外观质量及变形监测。若发现原结构使用过程中有异常情况并存在安全隐患时,应及时限制荷载使用并采取有效处理措施。  
主要技术依据  
(1)《房屋完损等级评定标准(试行)》(城住字(84)第678号);  
(2)《房屋质量检测规程》(DGJ08-79-2008);  
(3)《既有建筑物结构检测与评定标准》(DG/TJ08-804-2005);  
(4)《工程测量规范》(GB50026-2007);  
(5)《建筑变形测量规程》(JGJ8-2007);  
(6)《危险房屋鉴定标准》(JGJ125-1999(2004版));  
(7)《建筑地基基础设计规范》(GB50007-2011);  
(8)委托方提供的其他资料等。